产品:AutoCAD
客户:Studio GLDN
Irby在南加州大学学习期间,一位教授鼓励她从事建筑工作,因为这显然是她的热情所在,而且她仍然在设计AutoCAD。在获得艺术史和视觉文化学位后,她的下一步很快就到位了。她开始在一家建筑公司工作,然后转到一家室内设计公司,在那里她意识到自己想要追求什么。2018年GLDN一室公寓诞生了,专注于全面改造和室内设计
▪ Studio GLDN 总部位于加利福尼亚州圣克鲁斯,专门研究该地区的建筑和房屋的固有挑战。在最近的一个项目中,Irby从原来的主卧室和浴室改造范围变成了几乎完全拆除。
▪ “这是西区的一个小房子,以有很多腐烂和问题而闻名,”Irby说。“许多建于 1970 年代及之前的房屋都是自建的,由于没有规划部门,往往建造不正确。因此,这可能会给更新空间带来很多挑战。
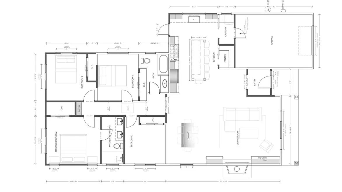
现在的目标变成了使房子在结构上尽可能坚固和持久——这意味着除了车库和浴室之外,所有东西都要拆除。Irby 从对现有布局的测量开始每个项目,然后在 AutoCAD 中绘制三个或四个不同的布局选项。
“我们打算为这个项目做第二个故事,”Irby说。“但是,通过我与AutoCAD提出的布局,很明显,这所房子在视觉上更适合将其保持在地块大小的单层中。另外,主人是新父母,经常上下楼梯到婴儿的房间似乎不是最好的。
“我们还可以看到如何建造这些大而开放的生活空间和更小、更舒适的卧室,”她继续说道。“从那里开始,我们进入了我所谓的详细设计,在那里我制定了所有的橱柜布局以及房间的实际外观。我也以3D方式完成所有高程。
Irby 说,她“基本上生活在”MacBook 上的 AutoCAD for Mac,并在整个设计过程中使用它,甚至在安装当天也是如此。
“特别是对于安装和购买,在你的图纸中包含尽可能多的信息总是好的,这样客户才能真正理解,”她说。“由于我是设计建造团队,我们有一个承包商。这对他来说是件好事,因为当我们要进行安装时,每个人都知道一切的去向,这是毫无疑问的。而且,我们始终可以在AutoCAD中引用DWG图。
在她的教育和职业生涯中,在不同的公司,Irby尝试并使用了许多不同类型的软件。通过这些经历,她比以往任何时候都更加热爱 AutoCAD。
在她的教育和职业生涯中,在不同的公司,Irby尝试并使用了许多不同类型的软件。通过这些经历,她比以往任何时候都更加热爱 AutoCAD。
